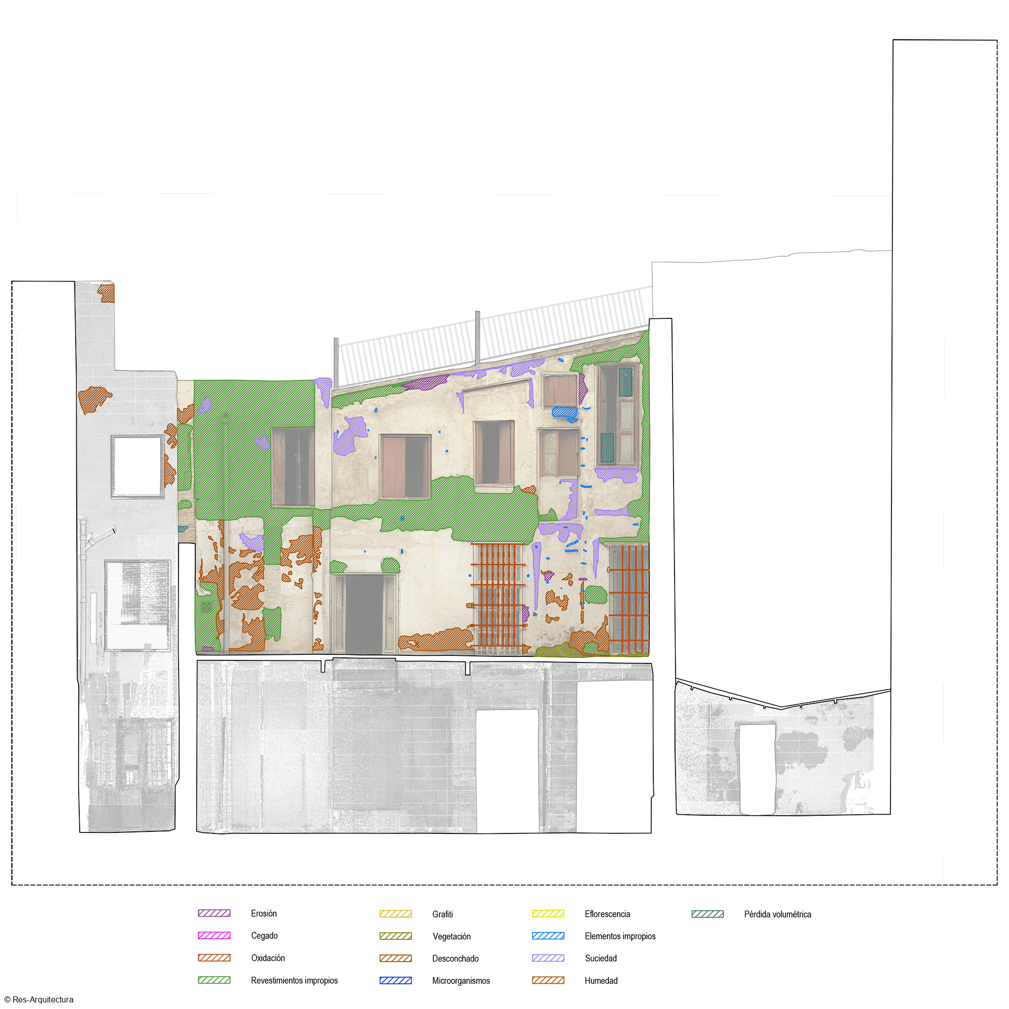
Estudio previo del edificio sito en Plaza del Autor, 4

Año: 2020

Ubicación: Valencia

Promotor: Estudio13 Arquitectos

Arquitectos: Camilla Mileto y Fernando Vegas López-Manzanares

Colaboradores: Sergio Manzano Fernández, Federico Iborra Bernad, Valentina Cristini, Vincenzina La Spina, José Ferrandis Montesinos, Mª Teresa Gil Piqueras, Pablo Rodríguez Navarro, Anna Pérez Vila

Volver