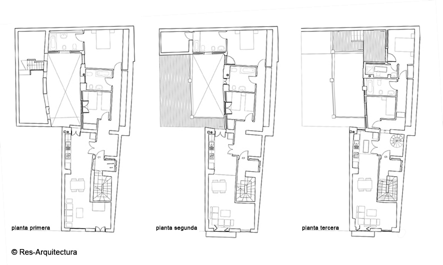
Edificios de 23 viviendas VPO

Año finalización obra: 2010

Año realización proyecto: 2005

Ubicación: C/ Maldonado, 33 y C/ Recaredo 23 y 24 (Valencia)

Promotor: AUMSA

Arquitectos: Fernando Vegas López-Manzanares y Camilla Mileto

Arquitecto técnico: Francisco Hidalgo Delgado

Colaboradores: M. Soledad García Sáez, José Miguel Zapata Peral, Valentina Cristini, Maria Mestre Antoni, Marta Córcoles Martínez, Elena Pérez Martínez, Daniella Mucci, Enrique Costa Pelufo, Irene García Martínez, Kerstin Leerhoff, Kathrin Sauerwein, Neus Vilalta Vilanova

Cálculo estructural: Vicente Pañego Lozano, Francesc Aznar Antoni, Juan Manuel Pérez Adelantado

Cálculo de instalaciones: Antonio Martí, INCOA S.L.

Telecomunicaciones: Jesús Gracia Saz

Volver